Cookie policy
Vai al contenuto
Home
Chi siamo
Servizi
Portfolio
Lavora con noi
News
Contatti
Menu
Home
Chi siamo
Servizi
Portfolio
Lavora con noi
News
Contatti
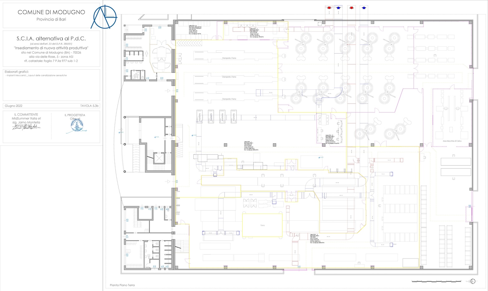
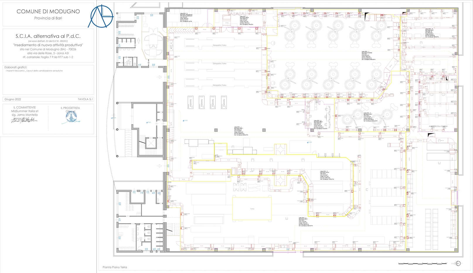
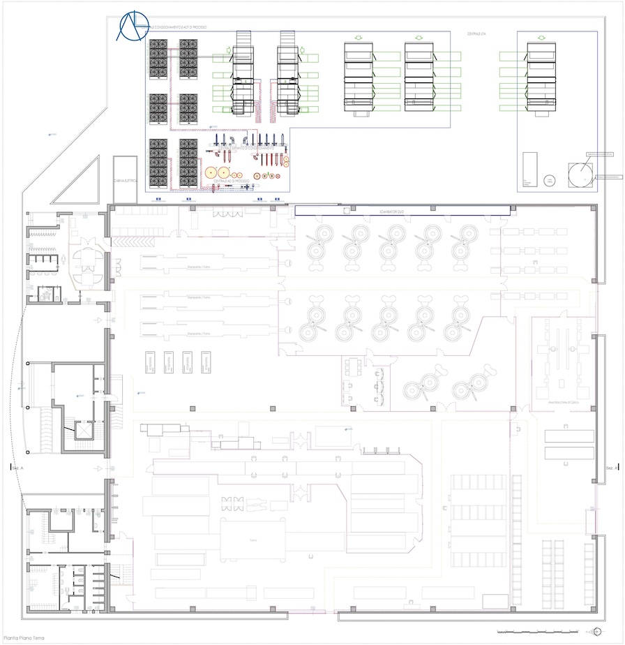
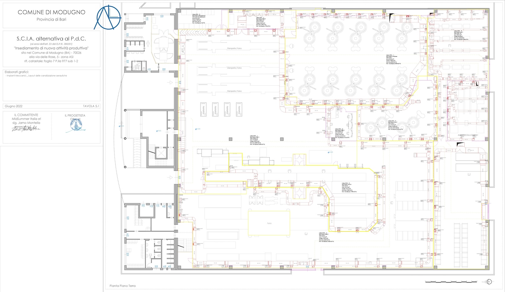
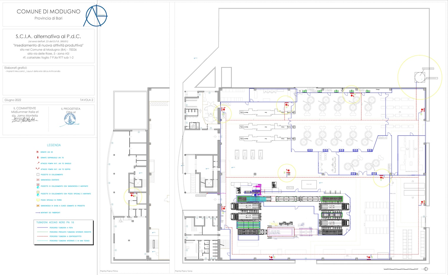
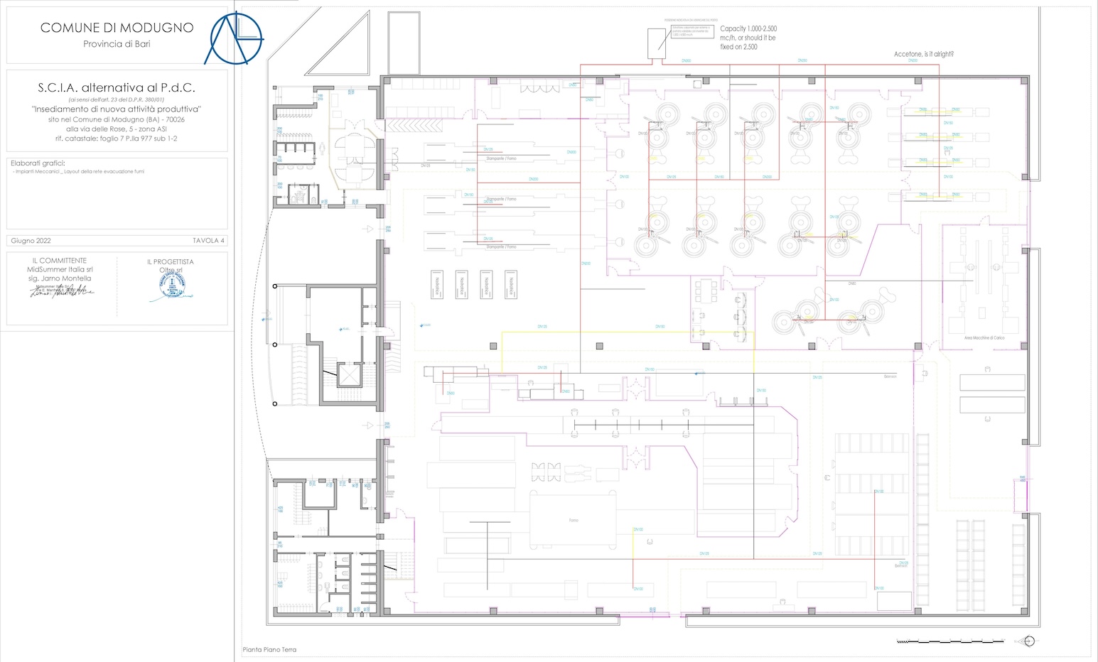
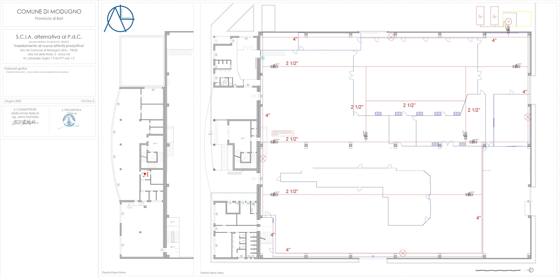
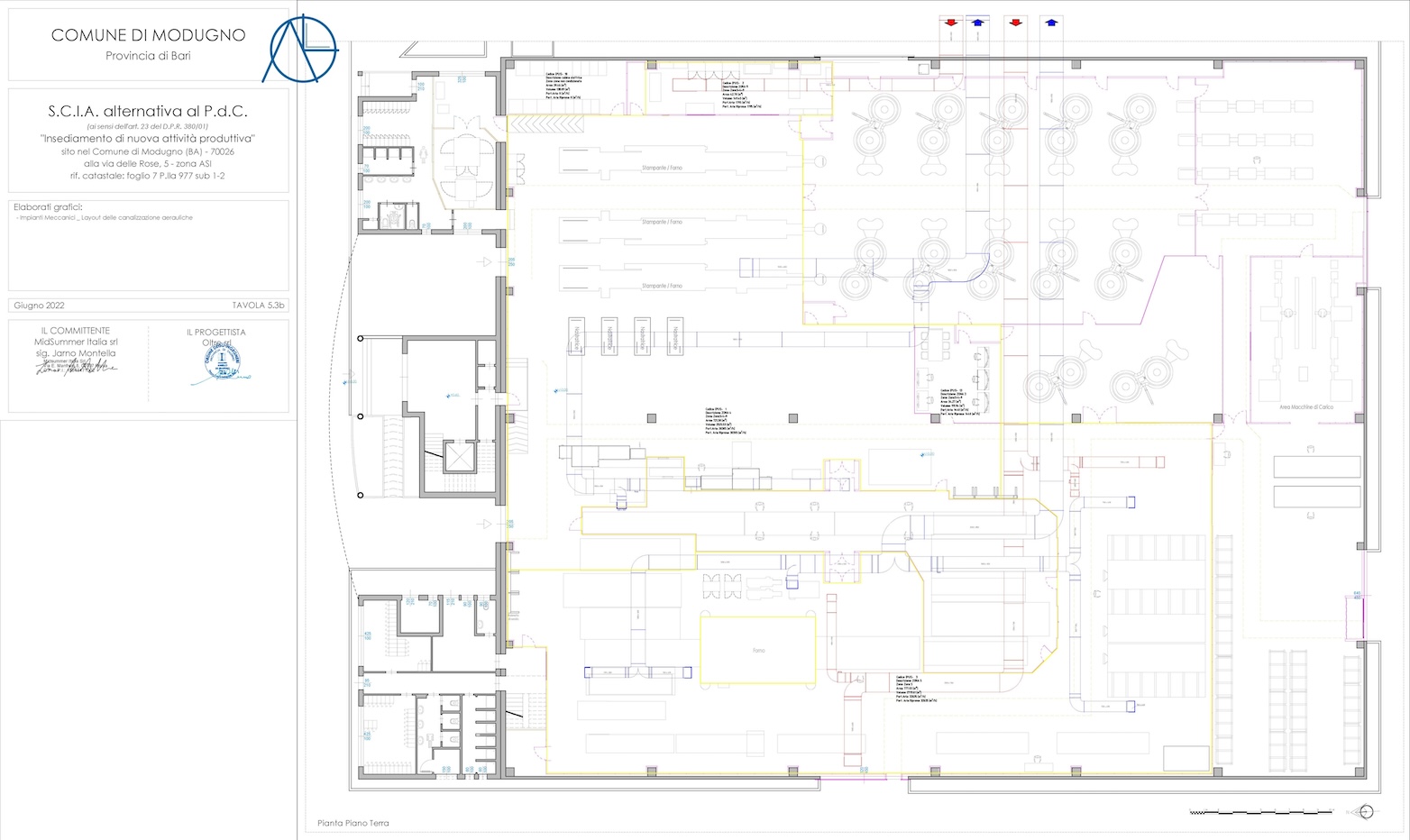
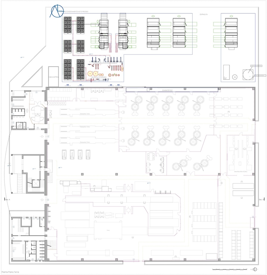
Midsummer Svezia CEAN room
Midsummer Svezia CEAN Room 3000 mq
Carte di progetto
Progetto Impianti_Pagina_1
Progetto Impianti_Pagina_2
Progetto Impianti_Pagina_3
Progetto Impianti_Pagina_4
Progetto Impianti_Pagina_5
Progetto Impianti_Pagina_6
Progetto Impianti_Pagina_7
Progetto Impianti_Pagina_8
Rendering
Midsummer 01
Midsummer 02
Midsummer 03