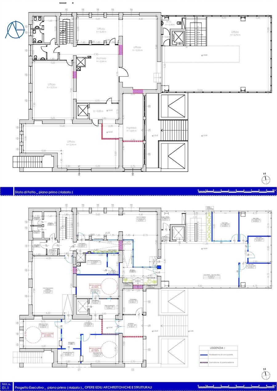
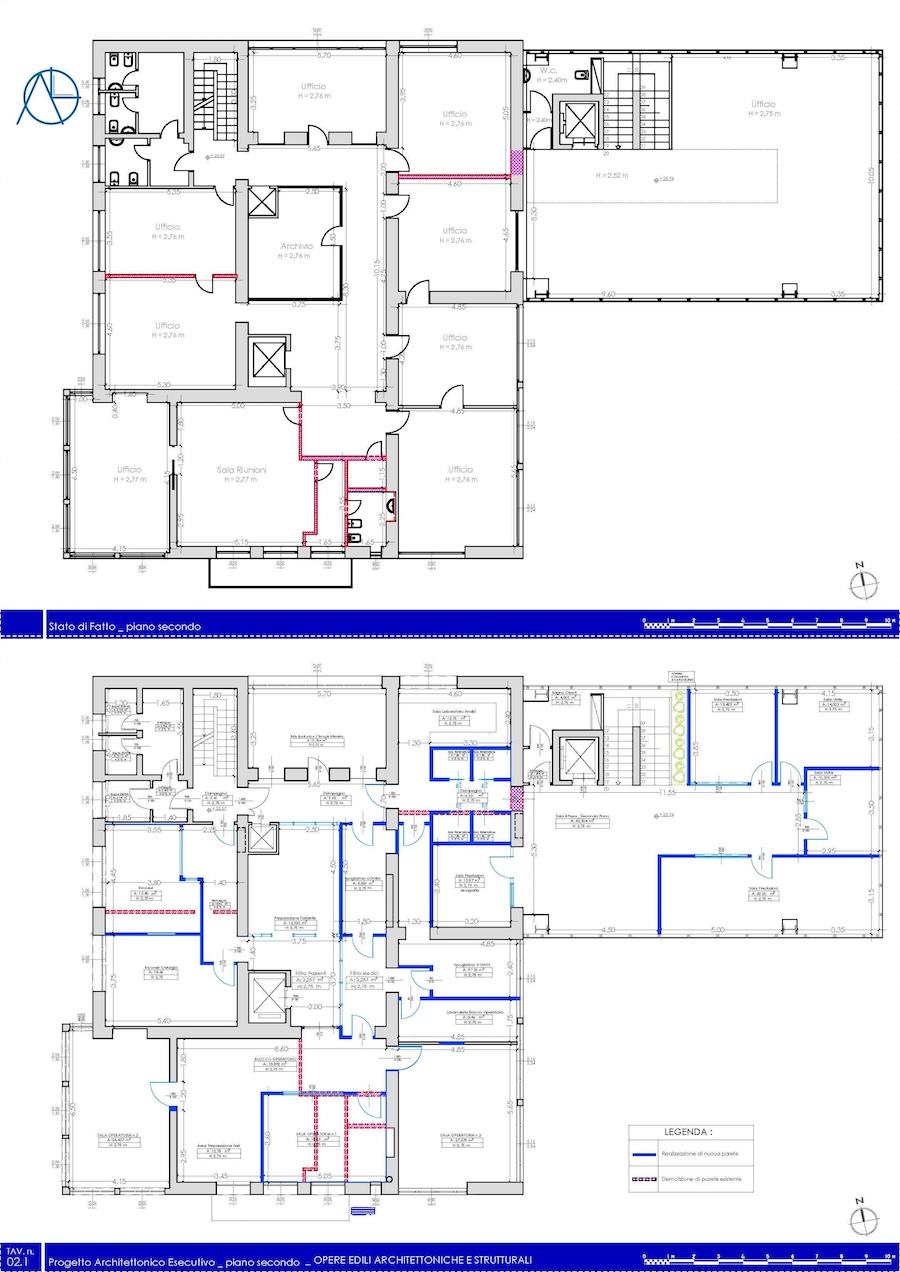
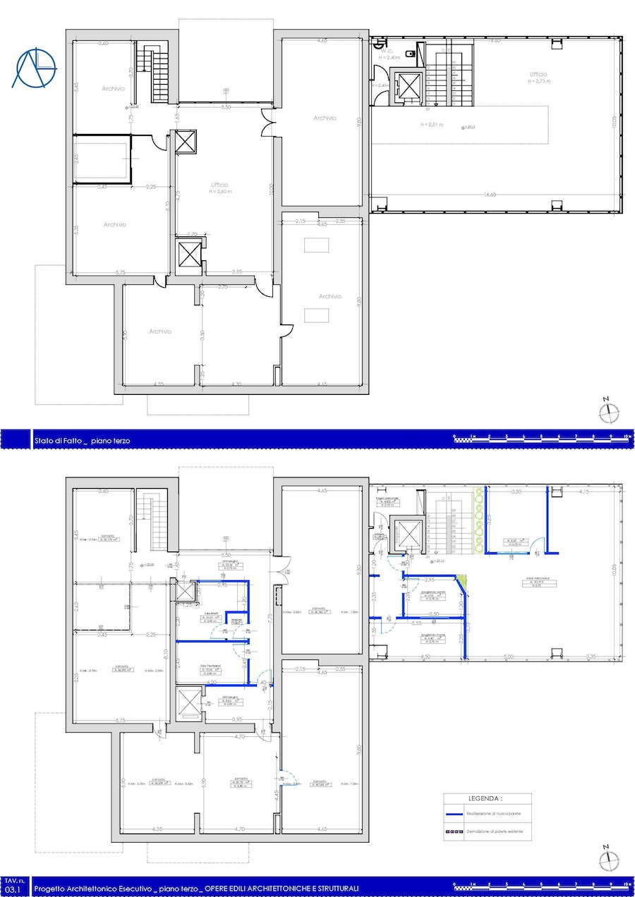
Clinica veterinaria Roma
Progetto:
Siamo orgogliosi di presentare un altro progetto di successo realizzato dalla nostra società: Questa struttura è stata progettata e costruita con la massima attenzione ai dettagli e all’alta qualità che caratterizzano il nostro lavoro.
Grazie alla collaborazione con i nostri clienti e al lavoro diligente del nostro team di ingegneri, abbiamo creato un ambiente accogliente e moderno che soddisfa le esigenze dei nostri amici animali e dei loro proprietari.
La Clinica Veterinaria Roma rappresenta un’altra testimonianza del nostro impegno per offrire soluzioni innovative nel campo dell’ingegneria civile e architettonica. Siamo entusiasti di aggiungere questo progetto al nostro vasto portfolio e di continuare a contribuire al benessere delle comunità attraverso la realizzazione di strutture di qualità.










