Clinica veterinaria Valmusone Osimo
Progetto:
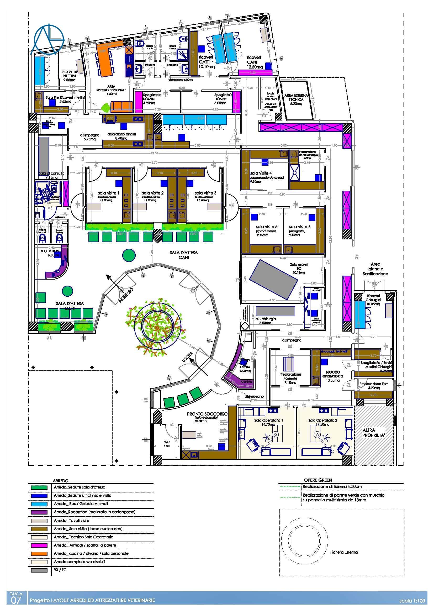
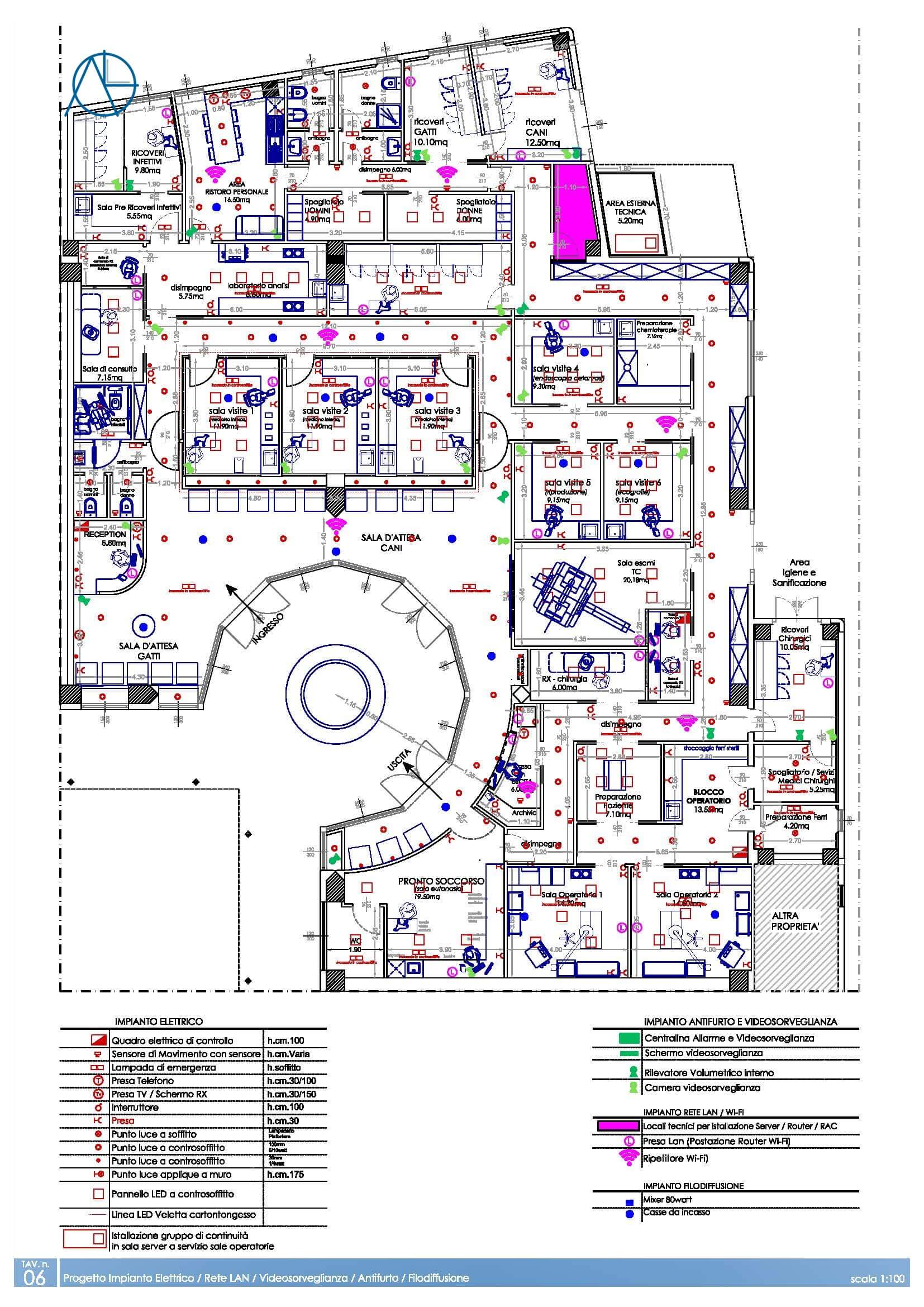
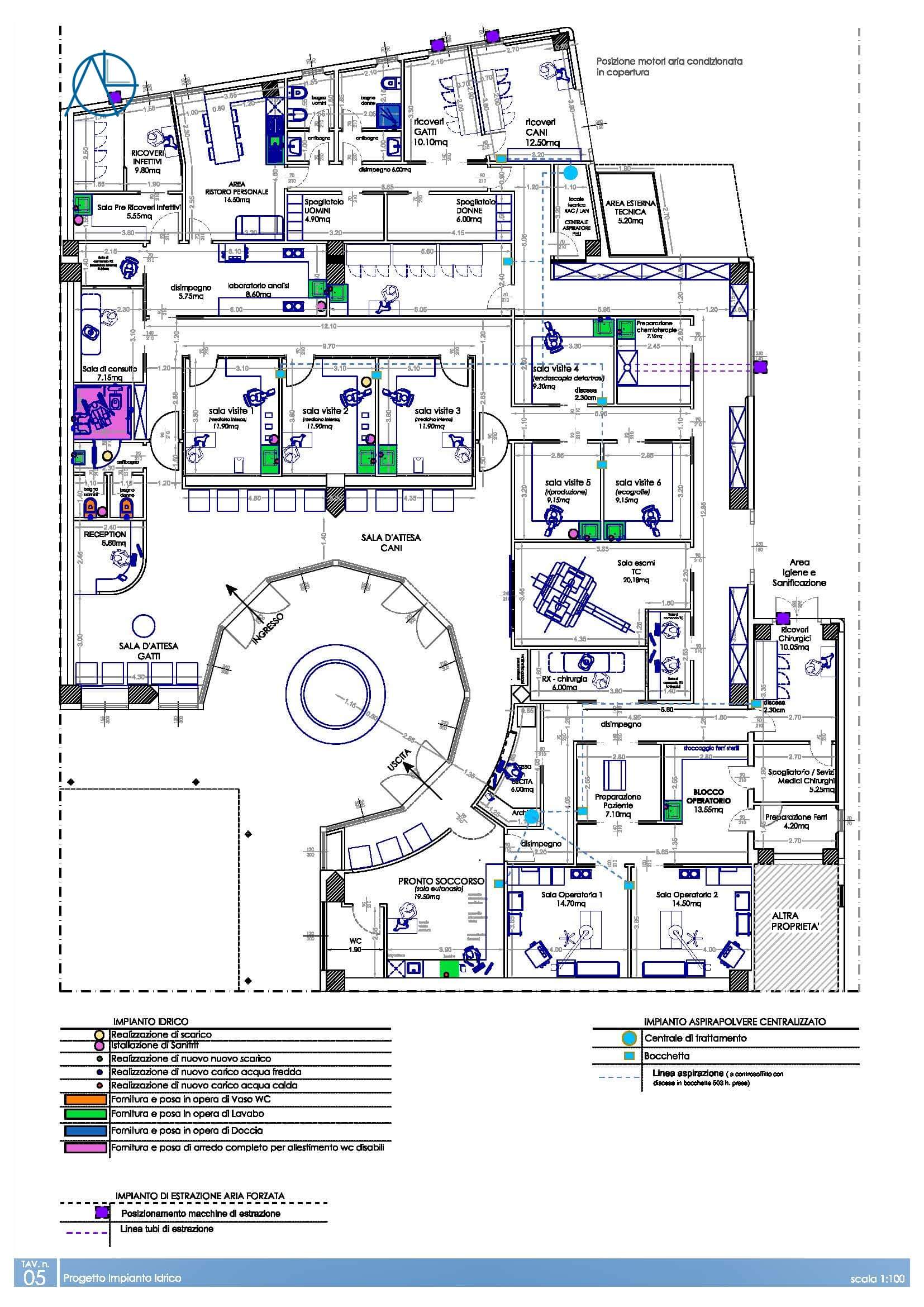
La Clinica Veterinaria Valmusone Osimo è un altro esempio eccellente del nostro impegno nell’offrire soluzioni innovative nel campo dell’ingegneria civile e architettonica.
La nostra equipe di professionisti ha lavorato con passione e dedizione per creare un ambiente accogliente e sicuro per gli animali domestici e i loro proprietari.
Siamo entusiasti di aggiungere questo progetto al nostro portfolio e di continuare a realizzare strutture che migliorano la qualità della vita nelle nostre comunità.

















